10 392 000 ₽/мес

16 000 ₽ за м²/год

7 794 м²
Площадь

Поделиться

Добавить в избранное

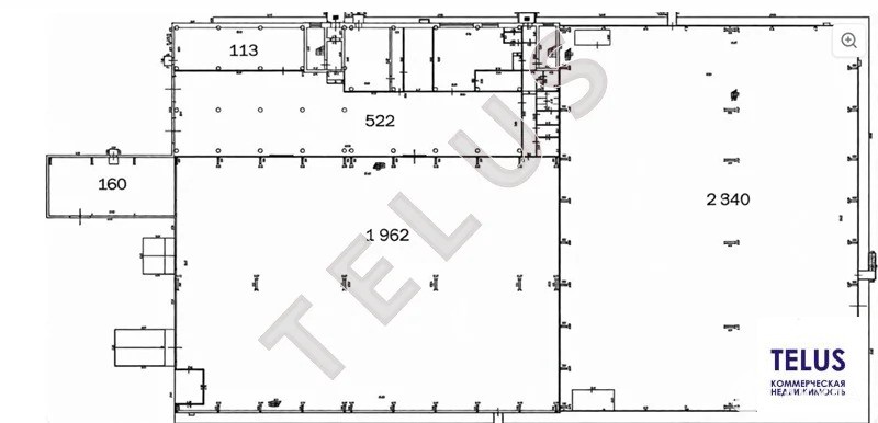
Производственно-складской комплекс площадью 7794 м2 на участке 3 га в собственности. Инженерные коммуникации центральные. Электрическая мощность 1, 5 МВт (1500 кВт), две ТП, газ по границе. Асфальтированная дорога. Территория огорожена и охраняется. 6 кран балок для крупногабаритных грузов до 20 тонн. Парковка на 100 машин. Комплекс включает в себя основной корпус 6646 м2, два ремонтных и слесарных цеха общей площадью 1000 м2 и здание охраны 116 м2. Бетонные полы, металлокаркас, сендвич-панели, потолки до 14 метров, 5 ворот в ноль, возможен пандус. 5 км от МКАД по Дмитровскому шоссе, 5 минут на авто до станции МЦД-1 Новодачная. Объект №. AFY-901104608

Дата обновления: 16 марта 2026