Продажа 1-комнатной квартиры

Бибирево, 24 мин

Алтуфьево, 34 мин

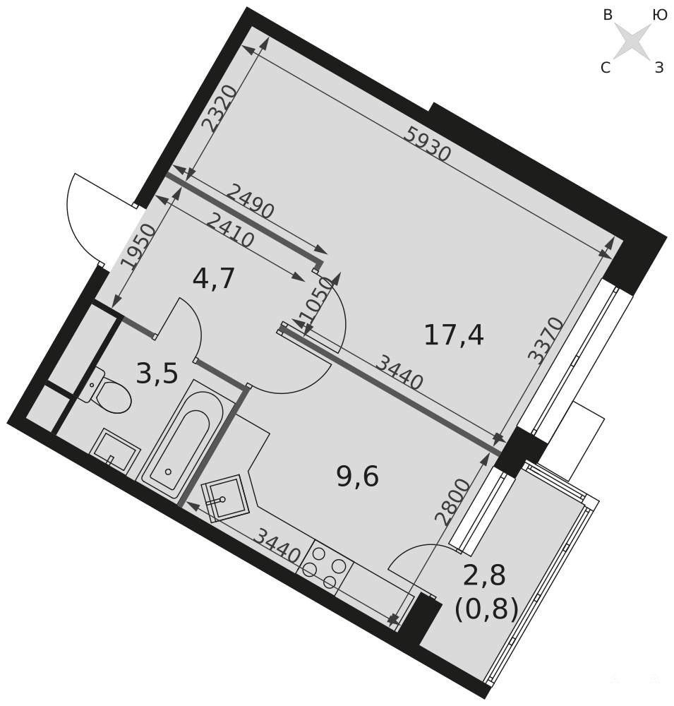
36 м²
Площадь
17.4 м²
Жилая площадь
9.6 м²
Площадь кухни
11/22
Этаж

10 558 800 ₽

293 300 ₽ за м²

ID объявления 12109073

Поделиться

Добавить в избранное

Продаётся 1-к квартира номер 999 общей площадью 36 кв.м. на 11-м этаже 17 этажного дома. Без отделки.

Особенности квартиры:
- 10 мин. до 3-х станций метро
- Лесной массив под окнами
- Последние готовые квартиры
- Просторная спальня, в которой можно разместить большую кровать.
- Линейная планировка - максимальная функциональность и удобство.
- Увеличенная ширина окна/окон - больше света и визуального простора.
- Гибкая планировка - создайте пространство по своему вкусу.
- Можно оборудовать рабочее место - комфорт для работы и учёбы.
- Ниша под шкаф - компактное и удобное место для вещей.
- Балкон - открытое пространство для отдыха.

Информация о комплексе:
Ощутите прелесть жизни в маленьком европейском городке, не выезжая на пределы Москвы. Здесь всё рядом и продумано для вас: магазины, булочные, прачечные, аптеки и салоны красоты в шаговой доступности. Наличие кладовых позволит вам поддерживать идеальный порядок и уют в вашей квартире!
Мы учли каждую мелочь, чтобы вы могли наслаждаться повседневной жизнью- Двор без машин, закрытое, безопасное, охраняемое место с удобным доступом для вашего авто, более чистый воздух и гарантированное место для стоянки - и это далеко не все преимущества наличия подземного паркинга. Наличие кладовых позволит вам поддерживать идеальный порядок и уют в вашей квартире! Родители самых маленьких жильцов будут в восторге от колясочных, запирающихся на магнитный замок. Весь малогабаритный семейный транспорт - коляска, велосипеды и самокаты - прекрасно будет ждать вас здесь до следующего раза. Вымыть колеса коляски или лапы питомцу можно в специальных помещениях, расположенных рядом с колясочной.

Транспортная доступность:
Менее 1км от МКАД: рядом Осташковское и Алтуфьевское шоссе; 15 минут до метро «Алтуфьево», «Бибирево», «Медведково»; 7 минут пешком до ближайшей остановки общественного транспорта.

Внутренняя инфраструктура:
Ощутите прелесть жизни в маленьком европейском городке, не выезжая на пределы Москвы. Здесь всё рядом и продумано для вас: магазины, булочные, прачечные, аптеки и салоны красоты в шаговой доступности.
2 муниципальных детских сада и муниципальная школа
Медицинский центр
Магазины, аптеки, салоны красоты, кафе, булочные на первых этажах комплекса

Дата обновления: 4 октября 2025