Продажа 1-комнатной квартиры
- 39 м²
- Площадь
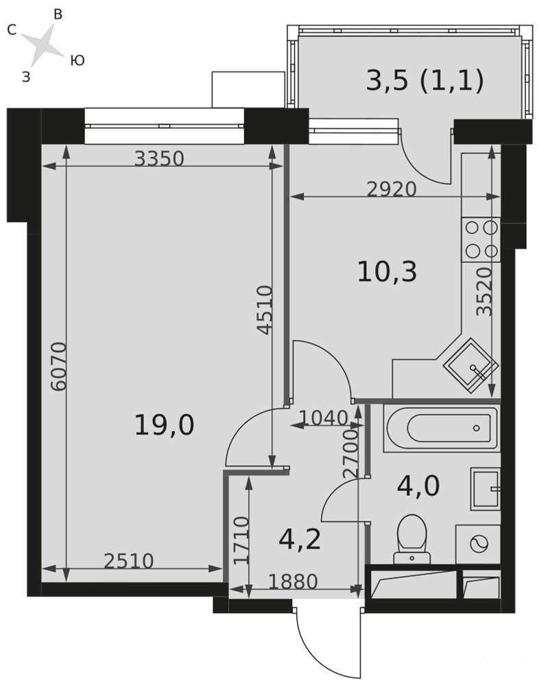
- 19 м²
- Жилая площадь
- 10.3 м²
- Площадь кухни
- 8/9
- Этаж
11 877 220 ₽
307 700 ₽ за м²
ID объявления 12109077
Поделиться
Добавить в избранное
Продается 1-комн. квартира, площадью 38.6 м2 в 9 мин. транспортом от м. Медведково. Возможен вариант покупки с использованием ипотечных средств.
Жилая площадь 19 м2, кухня 10.3 кв. м, ремонта нет, комнаты изолированные, окна выходят во двор.
Квартира располагается на 8 этаже 9-этажного монолитно-кирпичного дома в ЖК Датский квартал 2023 года постройки. Застройщик - ГК ФСК, высота потолков 2.85 м.
Дом оборудован пассажирским лифтом, закрытая территория.
Подземная парковка, есть гостевые парковочные места, парковка охраняемая. Обеспечение безопасности: видеонаблюдение, консьерж. Инфраструктура: школа, детский сад, поликлиника, детские площадки, спортивные площадки, места для отдыха, супермаркет, рестораны, коммерческие объекты.
Дата обновления: 3 октября 2025