Продажа 1-комнатной квартиры

Московская область, Долгопрудный, к1

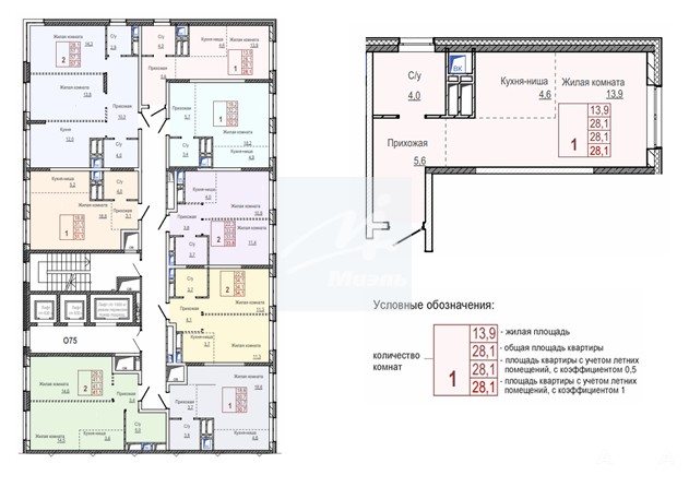
28 м²
Площадь
13.90 м²
Жилая площадь
4.60 м²
Площадь кухни
8/23
Этаж

6 900 000 ₽

245 552 ₽ за м²

ID объявления 12686353

Поделиться

Добавить в избранное

Квартира в новом доме, ЖК «Бригантина».Условия продажиПолная стоимость в договоре, свободная продажа. Взрослый собственник. Без обременения. Переуступка.Описание квартирыПланировка – евро. Кухня-гостиная, совмещённый санузел, широкая прихожая - эргономично, современно!Высокие потолки 2, 8 метра. без мебели.Тихая сторона, виды - на воду, чуть дальше - сквер и набережная канала им. Москвы, реку видно, летом пароходы будут проплывать мимо ваших окон.Прогулочная зона с дорожками и скамейками, спортивные и детские площадки - все уже есть и благоустроено.Дом и двор«Бригантина» — это монолитные дома, широкие улицы и дворы, качественное благоустройство общественных пространств, изобилие магазинов, кафе, предприятия сферы услуг, торговли - на первых этажах вдоль проспекта открыты и процветают; работают детский сад и школа. В домах сквозные подъезды на уровне земли, с удобной навигацией, предусмотрено место для консьержа.Из квартиры можно спуститься в подземный паркинг - места у застройщика еще есть. Управляющая компания следит за порядком - на территории и в доме чистота.Транспортная доступностьАвтобусное сообщение по городу и до Москвы:2 км и 24 минуты пешком до станции "Водники" МЦД-1;8 км до метро "Ховрино" - 20 минут8 минут транспортом до метро "Физтех".Инфраструктура рядомВблизи жилого комплекса располагается обустроенный парк в рамках программы «Парки Подмосковья» и канал имени Москвы.Покупателю в подарок - правовой сертификат, помощь в одобрении ипотеки.Переуступка.Работать с МИЭЛЬ выгодно и надёжнопокупателю выдаётся Правовой сертификат, гарантирующий юридическую чистоту объекта;возможна ипотека с особыми условиями для клиентов МИЭЛЬ от банков-партнёров, работаем с любыми источниками финансирования (материнский капитал, военный сертификат и т.д.);бонусы по партнёрским программам МИЭЛЬ на товары и услуги от известных брендов.

Дата обновления: 19 апреля 2026

Квартира От собственника