Продажа 2х-комнатной квартиры
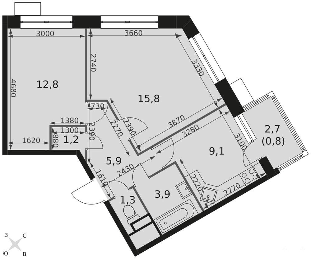
- 52 м²
- Площадь
- 28.6 м²
- Жилая площадь
- 9.1 м²
- Площадь кухни
- 6/9
- Этаж
15 697 730 ₽
301 300 ₽ за м²
ID объявления 12109083
Поделиться
Добавить в избранное
Продается 2-комн. квартира, площадью 52.1 кв. м в 9 мин. транспортом от м. Медведково. Возможен вариант покупки с использованием ипотечных средств.
Жилая площадь 28.6 м2, кухня 9.1 кв. м, ремонта нет, окна выходят во двор и на улицу.
Квартира располагается на 6 этаже 9-этажного монолитно-кирпичного дома в ЖК Датский квартал 2023 года постройки. Застройщик - ГК ФСК, высота потолков 2.85 м.
Дом оборудован пассажирским лифтом, закрытая территория.
Подземная парковка, есть гостевые парковочные места, парковка с охраной. Обеспечение безопасности: видеонаблюдение, консьерж. Инфраструктура: школа, детский сад, поликлиника, детские площадки, спортивные площадки, места для отдыха, супермаркет, рестораны, коммерческие объекты.
Дата обновления: 3 октября 2025