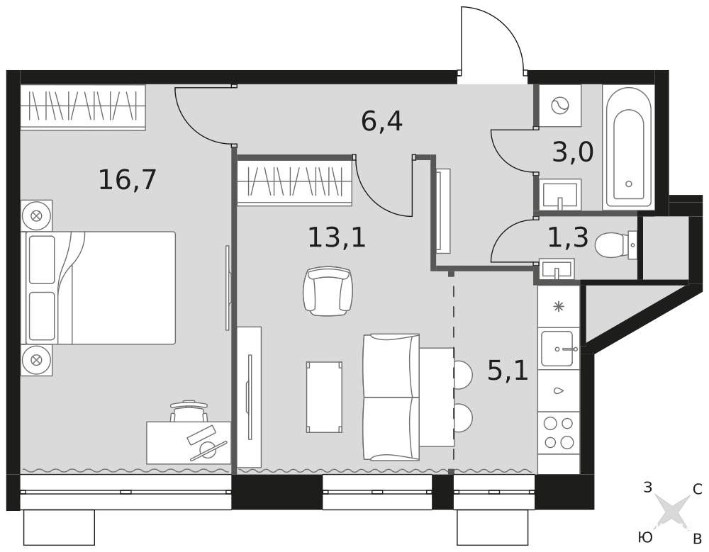
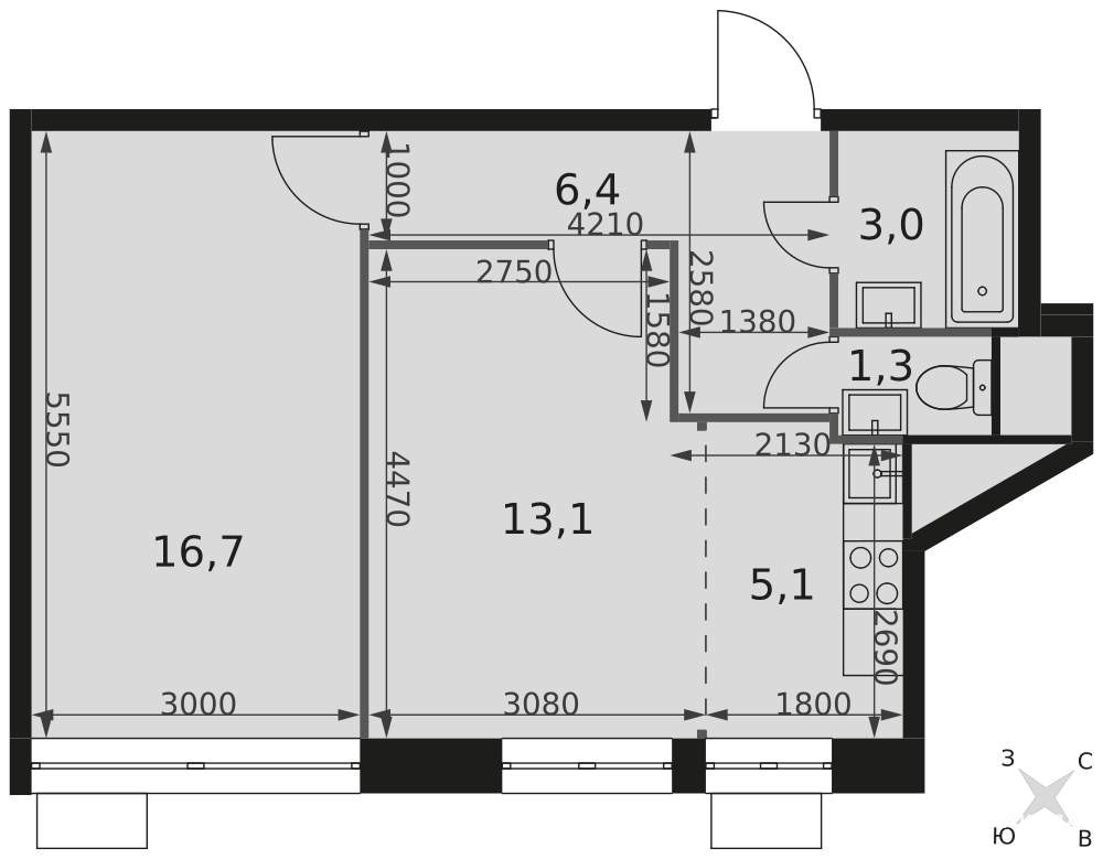
Продажа 2х-комнатной квартиры

Бибирево, 24 мин

Алтуфьево, 34 мин

46 м²
Площадь
29.8 м²
Жилая площадь
5.1 м²
Площадь кухни
10/21
Этаж

9 805 068 ₽

215 496 ₽ за м²

ID объявления 12145631

Поделиться

Добавить в избранное

Последние квартиры в ЖК "Датский квартал"!

Продаётся 2-к квартира номер 1093 общей площадью 45.5 кв.м. на 10-м этаже 22 этажного дома. Без отделки. Цена с учётом скидки!

Особенности квартиры:
- 10 мин. до 3-х станций метро
- Лесной массив под окнами
- Последние готовые квартиры
- Просторная спальня, в которой можно разместить большую кровать.
- Линейная планировка - максимальная функциональность и удобство.
- Увеличенная ширина окна/окон - больше света и визуального простора.
- Панорамное окно (1 и более) - раскрывает просторы вашего дома.
- Раздельный санузел - больше удобства для всех членов семьи.
- Евроформат - просторное и удобное жилье с отличной планировкой.
- Гибкая планировка - создайте пространство по своему вкусу.
- Место для игры/занятия спортом - идеальное пространство для активных детей.
- Можно оборудовать 2 или более рабочих места - пространство для нескольких человек.
- Можно оборудовать рабочее место - комфорт для работы и учёбы.
- Просторная мягкая зона - комфорт и уют для отдыха всей семьи.
- Возможность добавить спальное место - дополнительный комфорт для гостей.

Информация о комплексе:
Ощутите прелесть жизни в маленьком европейском городке, не выезжая на пределы Москвы. Здесь всё рядом и продумано для вас: магазины, булочные, прачечные, аптеки и салоны красоты в шаговой доступности. Наличие кладовых позволит вам поддерживать идеальный порядок и уют в вашей квартире!
Мы учли каждую мелочь, чтобы вы могли наслаждаться повседневной жизнью- Двор без машин, закрытое, безопасное, охраняемое место с удобным доступом для вашего авто, более чистый воздух и гарантированное место для стоянки - и это далеко не все преимущества наличия подземного паркинга. Наличие кладовых позволит вам поддерживать идеальный порядок и уют в вашей квартире! Родители самых маленьких жильцов будут в восторге от колясочных, запирающихся на магнитный замок. Весь малогабаритный семейный транспорт - коляска, велосипеды и самокаты - прекрасно будет ждать вас здесь до следующего раза. Вымыть колеса коляски или лапы питомцу можно в специальных помещениях, расположенных рядом с колясочной.

Транспортная доступность:
Менее 1км от МКАД: рядом Осташковское и Алтуфьевское шоссе; 15 минут до метро «Алтуфьево», «Бибирево», «Медведково»; 7 минут пешком до ближайшей остановки общественного транспорта.

Внутренняя инфраструктура:
Ощутите прелесть жизни в маленьком европейском городке, не выезжая на пределы Москвы. Здесь всё рядом и продумано для вас: магазины, булочные, прачечные, аптеки и салоны красоты в шаговой доступности.
2 муниципальных детских сада и муниципальная школа
Медицинский центр
Магазины, аптеки, салоны красоты, кафе, булочные на первых этажах комплекса

Дата обновления: 17 октября 2025